
根据不同的车厂、国家的要求,针对产品的辐射的差异性是很大的,主要集中在测试频段、干扰强度以及天线的切换频率等等。本文主要根据来介绍辐射抗干扰测试的基本条件以及一下要求。
标准名称
ISO 11452-2: Road vehicles - Component test methods for electrical disturbances from narrowband radiated electromagnetic energy - Part 2: Absorber-lined shielded enclosure
测试目的
该测试目的是检验设备对【80MHz – 1 GHz】频带电磁场的抗干扰性能。
测试条件
l 测试温度:(23 ± 5) °C.
l 电压:(13,5 ± 0,5) V for 12 V
l 调制:
a). 未调制正弦波信号(可使用范围:0.01 MHz to 18 GHz)
b). 1KHz, 80%调制的AM(振幅调制)信号(可使用范围:0.01 MHz to 800MHz)
c). ton = 577 us 和 period = 4 600 us的PM(调制) 信号(可使用范围:800 MHz to 18 GHz)

l 滞留时间(Dwell time): 不小于1s
l 频率步长:

l 测试严酷等级

l 频率范围

l 测试距离(天线到EUT的距离):1m
测试设备要求
l 供电电压和电池
l EUT正常运转所需要的设备
l 真是的(,触发器)或者模拟的EUT环境
l 50mm的绝缘支撑
l 距水平地面高度为90±10 cm,0.5mm厚的铜板或镀锌钢板,并附有间距为30cm的接地铜条
l 符合CISPR标准的LISN(对于远端接地,需要两套LISN)
l 信号发生器和功率放大器
l 50欧姆的耦合器
l 功率表
l 天线:
双锥天线(80MHz – 400MHz)
对数和周期天线(400MHz – 1GHz)
喇叭天线 (1GHz – 18GHz)
l 电波暗室
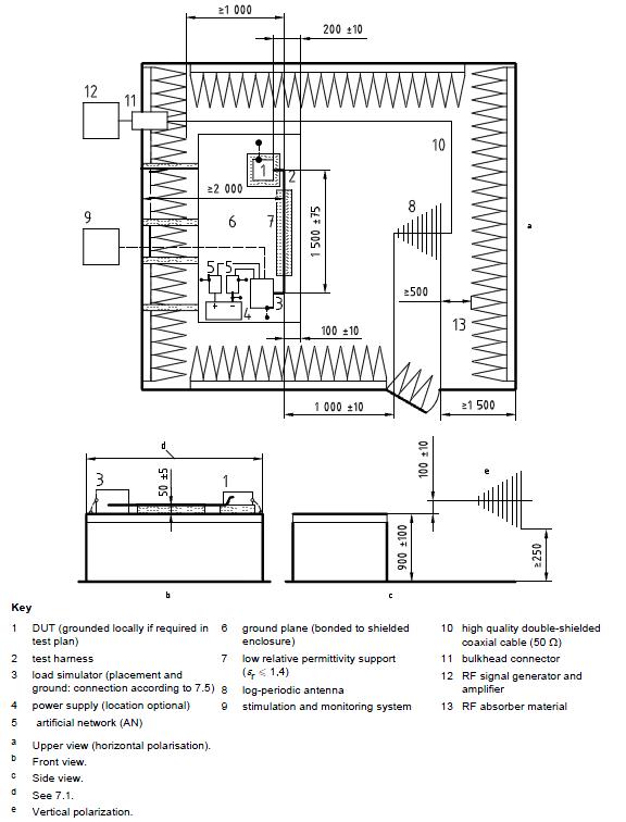
测试布置
l 测试设置------双锥天线

l 测试设置------对数周期天线

l 测试设置------喇叭天线

测试结果性能判据
l Class A: EUT功能或性能一直保持正常,无任何异常现象
l Class B: 所有功能或性能在干扰状态下,一个或者多个功能或者性能偏移指定的容差,但所有功能或性能在干扰移除以后能恢复到规定的容差限值以内。并且存储数据不能有任何异常现象
l Class C: 一个或者多个功能或性能暂丧失,但在施加干扰之后EUT能自动恢复到正常模式
l Class D: 一个或者多个功能或性能暂丧失,但在施加干扰之后通过人为的干预能自动恢复到正常模式
l Class E: 一个或者多个功能或性能暂丧失,并且不能自动恢复到正常模式
以上内容由整车辐射抗干扰试验机构国测航天收集自网络,仅供学习和参考,版权归原作者所有!